施工実績 豪雨被害をきっかけに築50年住宅リフォーム
- ホーム
- 施工実績・お客様の声
- 施工実績 豪雨被害をきっかけに築50年住宅リフォーム
沖縄県 東村豪雨被害をきっかけに築50年住宅リフォーム
- 塗装・塗り替え
- 修繕・改修
- 防水
- 増築・改装
- キッチンリフォーム
- トイレリフォーム
- お風呂のリフォーム
- クロス
- 床
- 外壁工事
- 内装工事
- 工事概要
-
- 築年数
築50年
- ご住所
沖縄県 東村
- 工事期間
3ヵ月
- 工事内訳
- お客様からのご要望
2024年11月に観測史上最大を記録した集中豪雨によって浸水被害を受け、住宅内部の床・壁・家電・家具などほとんどが生活出来ない状態になってしまいました。
喜神サービスに相談。打ち合わせを重ね、全体的にリフォームを依頼することになりました。- リフォームのポイント
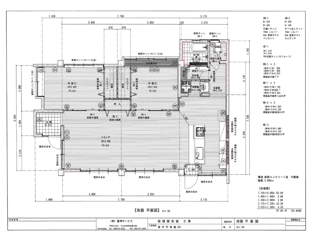
浸水被害により全体的にリフォームを行うことになったので、せっかくリフォームするならと生活スタイルに合わせた間取りへ変更 〔図面参照〕。
内部を解体しスケルトンの状態にしてリフォームを行いました。
床・壁・天井を造り替え、キッチン・トイレ・浴槽も造り替え、サッシの交換やタイルも張り替えました。
取り付ける商品はショールームで施主様に実際に見て選んでもらい、気に入った商品を選定。
リフォーム期間中でも、施主様は近くの住宅で借り住まいをすることになりましたが、仕事を終えてリフォームの進捗を確認するのを毎日楽しみにしていました。- 担当者のコメント
今回のフルリフォームを無事に終えることができ、安堵と達成感を感じています。
計画を立てた当初は、工事のスケジュール調整や予算管理、細かい仕様の決定など、考えるべきことが多く、正直なところ不安もありました。
しかし、施主様や職人さんとの綿密な打ち合わせを重ね、職人の皆さんの丁寧な仕事のおかげで、ひとつひとつ課題をクリアしながら進めることができました。
特に、完成後に家全体が見違えるように生まれ変わった姿を見たときは、大変だった分だけ喜びも大きかったです。
リフォームは単なる修繕ではなく「これからどんな暮らしをしたいか」を形にするプロセスだと改めて感じました。
今回の経験を活かし、今後も快適な住まいづくりに携わっていきたいと思います- お客様の声
今回の災害で、私たちの家は床上浸水の被害を受けました。
まさか自分の家がこんな状況になるとは思ってもいませんでした。
水が引いた後の光景は言葉にならないほど悲惨で、どこから手をつければいいのか分からず、途方に暮れました。
借り住まいの中、元の生活に戻るのに1年くらいかかると考えていましたが、担当営業の方が打ち合わせを良く行ってくれたことや、これからの暮らしを考えると、工事期間は毎日リフォームの進捗を確認して、日々変化する住宅を見るのが楽しみになっていました。
また、相談をしてから約4ケ月という期間で元の生活に戻れたことや、隣近所も同じ被害を受けていて復旧がまだの中、大規模なリフォームを早く完了してくれたことは、とても感謝しています。
5月の連休は完成した住宅でBBQを計画しています。





































外壁工事
内装工事
エクステリア
その他